Zadejte si poptávku zdarma
  • Nemusíte obvolávat či složitě hledat firmy
  • Ušetříte čas. Budeme hledat za Vás
  • Díky porovnání více nabídek ušetříte až 30% z ceny zboží /služby
  • Služba je zdarma a nezávazná
  • Poptejte od projektu až po stavební firmu.
Chci získat nové zakázky
  • Získáte nové obchodní přiležitosti
  • Poptávky s kontaktními informacemi přímo na Váš email*
  • Přístup k archivním poptávkám*
  • Zviditelnění na největším poptávkovém portále na projekční práce
  • Vysoká návštěvnost katalogu dodavatelů
Blansko - Jihomoravský kraj

Obsah poptávky

Dobrý den,
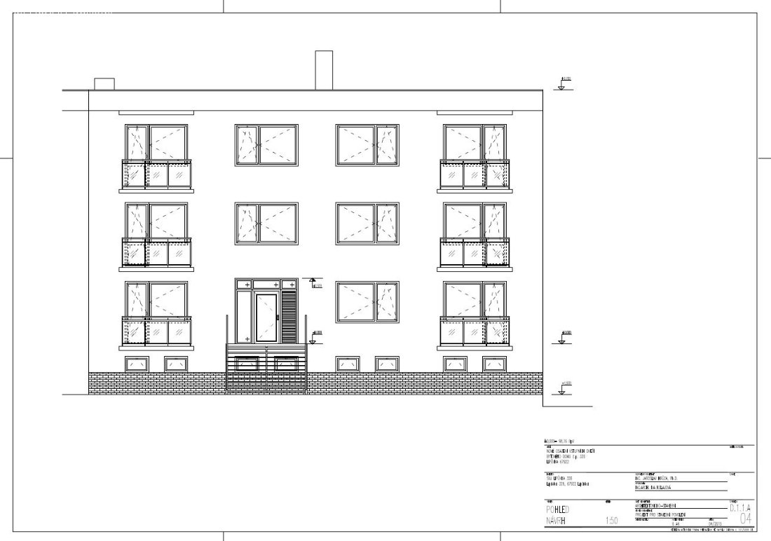
prosíme o cenovou nabídku na projektovou dokumentaci zateplení byt.domů Lipůvka 325 a 326.

Cenovou nabídku na PD prosíme pro každou bytovku zvlášť - ve třech variantách projektové dokumentace:

1. PD kompletního zateplení stěn i střechy (včetně požárně technického posouzení, jestli se nezhorší požární bezpečnost)
(Byt. dům 326 má již z dřívější doby zateplen jižní štít pěnovým polystyrenem v tl. 8 cm.
V PD bychom proto chtěli posouzení, jestli by zateplení postačovalo, či případně další řešení zateplení)

2. PD zateplení pouze pro střechu byt.domu, včetně požárně technického posouzení, jestli se nezhorší požární bezpečnost.

3. Pouze návrh skladby zateplení - bez výkresové dokumentace, ale s požárně technickým posudkem, jestli nedojde
ke zhoršení požární bezpečnosti.

Kontakt

Nemáte přístup k zobrazení kontaktních informací
Poptávka: Poptávka na cenovou nabídku na projektovou dokumentaci zateplení bytového domuPoptávka: Poptávka na cenovou nabídku na projektovou dokumentaci zateplení bytového domu

Odstupy staveb

Při výběru pozemku je důležité si uvědomit, že nebudeme moct využít celou plochu pozemku pro stavbu domu, ale musíme respektovat jisté náležitosti. Nesmíme svým stavebním záměrem znehodnotit a omezit okolní...
Čti více

Stavba domu

Ještě než se pustíme do stavby rodinného domu, projdeme několika kroky. Musíte si rozmyslet typ domu a základní stavební materiál. Během připravy projektu budete společně s projektantem řešit způsob vytápění...
Čti více

Levné domy do milionu

Mnozí z vás sní o rodinném domě. Bohužel mnohdy finanční situace nedovolí velký dům a tak se člověk uskromní a vybere si malý dům. Takový dům můžeme postavit relativně levně...
Čti více

Jak na soklové omítky

Po zateplení soklové části domu, můžeme vytvořit již finální povrchovou úpravu. K tomu můžeme využít soklové omítky, obklady, desky apod.Dříve byly soklové omítky velmi tvrdé a nepropustné na bázi cementu...
Čti více

Tenkovrstvé omítky

Pomocí omítek dokončíte povrchovou úpravu stěn a fasád. Aby však úprava byla trvanlivá a spolehlivá je třeba vybrat tu správnou omítku. V dnešní době si můžete vybrat z akrylátových, minerálních...
Čti více

Barvy do interiéru

Pro malování interiéru je často nejen důležítá barva, ale také typ barvy. Na trhu je nespočet výrobců barev, ty lze zařadit do několika základních kategorií. Používají se nejčastěji barvy, které...
Čti více

Dřevostavba

Dřevo patří mezi tradiční stavební materiál již po staletí. Byl využíván, jak ke stavbě domu, chat, pergol, teras, přístřešků, oken, ale také jako palivo. Především severské země jako Finsko, Švédsko...
Čti více

Zděné domy

Na trhu je řada stavebních materiálů, přesto lze domy rozdělit na dvě hlavní kategorie a to dřevostavby nebo zděné domy. V našich krajích je nejčastější zděný dům, ač se v...
Čti více

Sádrokartony

Sádrokarton jako stavební materiál. Často také nazýván ve zkratce SDK. Při rekonstrukcích oceníte jeho lehkost a rychlost výstavby. Může se i hodit pro vytvoření atypického podhledu se svítidly. Abychom zvolili...
Čti více

Rekonstrukce bytu

Byt je něco kam se každý den vracíme a chceme si zde odpočinout, nabrat síly. Někdy máme pocit, že naše vlastní prostředí je horší než naše pracoviště. A tak se...
Čti více

Rekonstrukce podkroví

V rodinných domech nebo v bytových domech jsou nevyužité půdní prostory.  Podkroví je často využíváno jen jako skladové prostory nebo nejsou využívány vůbec. Časem však přijde někdo, kdo chce tento...
Čti více

Rekonstrukce kuchyně

Mezi časté rekonstrukce patří přestavba kuchyně.  Buď již dosluhuje, nevyhovuje moderním trendům nebo má řadu technických problémů. Ještě než se pustíme do rekonstrukce kuchyně musíme si uvědomit, že během přestavby...
Čti více

Rekonstrukce bytového jádra

V panelovém bytě bydlí nemalý počet našich obyvatel. Díky revitalizačním programům dochází k odstranění konstrukčních závad, realizace nové fasády, zasklení lodžií. To vše vede ke zvýšení komfortu a kvality bydlení...
Čti více

Rekonstrukce koupelny

Koupelna je prostor kde probíhá každodenní očista. Je to prostor, který navštíví i vaše návštěva. Určitě se chcete cítit dobře. Správně navržená koupelna jak esteticky tak i stavebně vám zajistí...
Čti více

Rekonstrukce bytového a rodinného domu

Domov  je to, kam se vždy vracíme. Někdy máme však pocit, že náš domov není to správné místo, kde se cítíme dobře a nabereme zde nové síly.  Abychom získali domov...
Čti více

Návrh interiéru

Návrh interiéru si nechte zpracovat opravdovými profesionály. Architektem nebo designérem. Vašemi náměty a představami doplníte designéra. Nejdůležitější je komunikace mezi Vámi a zpracovatelem návrhu.Můžete i úplně vše nechat na bytovém...
Čti více

Návrh koupelny

Nejčastější místnost, kterou navštěvujeme jak po příchodu do domu tak i při odchodu k spánku je koupelna. Proto je vhodné, abychom se v koupelně cítili příjemně, ale nejen my, ale...
Čti více

Vizualizace interiéru

Co je vizualizace?: Je v dnešní době nejběžnější grafická prezentace o představě budoucí stavby. Vizualizace najdete často na bilboardech připravovaných staveb. Můžete si nechat vytvořit vizualizaci čehokoliv. Nejběžnější ve stavebnictví...
Čti více

Průkaz energetické náročnosti

Průkaz energetické náročnosti budovy(PENB) je komplexní posouzení objektu zhlediska energetické náročnosti. Slouží pro jednoduché porovnání budov z hlediska nároků na energii a tedy i nákladů potřebných na provoz.Pro stávající majitele...
Čti více

Projektová dokumentace

Proces projekční práce od studie domu až po projektovou dokumentaci pro stavební úřad. Vyplatí se Vám katalogový dům, který můžete mít klidně stejný jako Vás soused nebo je vyhodné nechat...
Čti více

Správní poplatky na stavebním úřadě 2013

Správní poplatky na stavebním úřaděZákon, kterým se mění zákon č. 183/2006 Sb., o územním plánování a stavebním řádu (stavební zákon), ve znění pozdějších předpisů, a některé související zákonyZákon č. 634/2004...
Čti více

Obsah dokumentace k žádosti o vydání roz…

OBSAH A ROZSAH DOKUMENTACE k žádosti o vydání rozhodnutí o umístění stavby nebo zařízení (DUR) nebo rozhodnutí o změně stavby a o změně vlivu stavby na využití území
Čti více

Obsah dokumentace k žádosti o vydání roz…

OBSAH A ROZSAH DOKUMENTACE k žádosti o vydání rozhodnutí o změně využití území
Čti více

Náležitosti a způsob vedení stavebního d…

Náležitosti a způsob vedení stavebního deníku a jednoduchého záznamu o stavbě
Čti více

Obsah dokumentace bouracích prací

Dokumentace bouracích prací musí vždy obsahovat části A až F členěné na jednotlivé položky s tím, že rozsah jednotlivých částí musí odpovídat druhu a významu stavby, jejímu umístění, objemu, použitým  materiálům...
Čti více

Obsah dokumentace skutečného provedení s…

Rozsah a obsah dokumentace skutečného provedení stavby  
Čti více

Obsah projektové dokumentace pro provede…

Rozsah a obsah projektové dokumentace pro provádění stavby  
Čti více

Obsah projektové dokumentace pro ohlášen…

Rozsah a obsah projektové dokumentace pro ohlášení stavby  
Čti více

Stavba domu I

Každá stavebnice má svuj určitý stavební postup, stejně tak je to i při stavbě domu.Základní etapy výstavby a stavební postup rodinného domu.
Čti více

Bungalov rodinné domy

Je jeden z typů rodinných domů, které často najdete v nabídce mnoha firem. O jaké typové domky vlasně jde? Název a konstrukce má původ v Indii. Jde o tradiční venkovský...
Čti více

reklama

O CHCI PROJEKT DOMU.cz

Chci projekt domu.cz je jediný poptávkový server orientovaný na realizaci. Zaměřujeme se na všechny poptávky, které jakkoliv souvisí s realizací domu. Od poptávek projektů, materiálů, stavebních firem až po reality.

Login Form